Rivers Edge in Warrington
by Home Reach
3 bedroom houses
From £118,500 for a 30% share
(From £395,000 Full Market Value)
Warrington, Cheshire, WA1 1EA

Final opportunity to secure a home here — one plot left
Whether you're a first-time homeowner or looking to make a move up the property ladder, you'll find your new home here at Rivers Edge. Located south of Warrington town centre, this collection of 3 & 4 bedroom new build homes will appeal to homeowners from all walks of life. These beautifully designed new build properties form part of a brand-new community on the edge of the River Mersey. The housing development is just over one mile from all the amenities available in Warrington town centre, and within easy reach of major cities including Liverpool, Chester and Manchester.
EPC - B
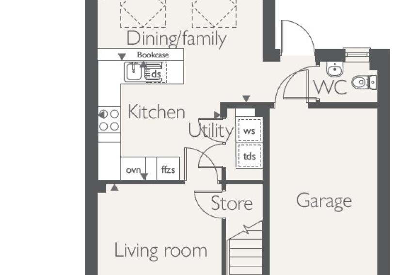
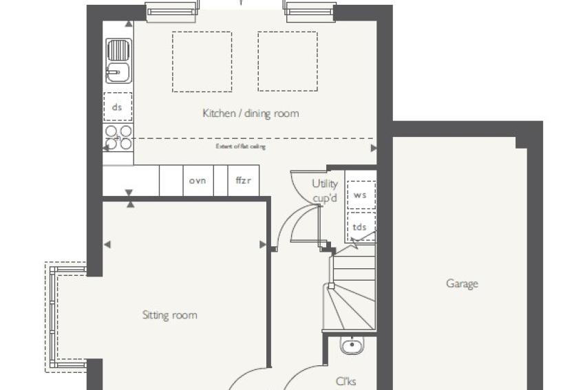
Images are for illustrative purposes only. Please speak to Sales Adviser for full details
**See the key information here
Key Information about Shared Ownership
Example Shared ownership share price options
The following table shows examples of the share price range of this development at various share points
| Share | Price from |
|---|---|
| 30% share | £118,500 |
| 35% share | £138,250 |
| 40% share | £158,000 |
| 45% share | £177,750 |
| 50% share | £197,500 |
| 55% share | £217,250 |
| 60% share | £237,000 |
| 65% share | £256,750 |
| 70% share | £276,500 |
| 75% share | £296,250 |
Are we missing any purchase information? Contact the developer
Please note: Computer generated images are for illustrative purposes only. Images may include optional upgrades at additional cost. Its purpose is to give a feel for the development, not an accurate description of each property. External materials, finishes, landscaping and the position of garages (where provided), may vary throughout the development. Properties may also be built handed (mirror image). Please ask for further details.
Calls cost up to 7p (or 7p per minute) plus your phone company's access charge
