Middlestone Meadows in Spennymoor
by Home Reach
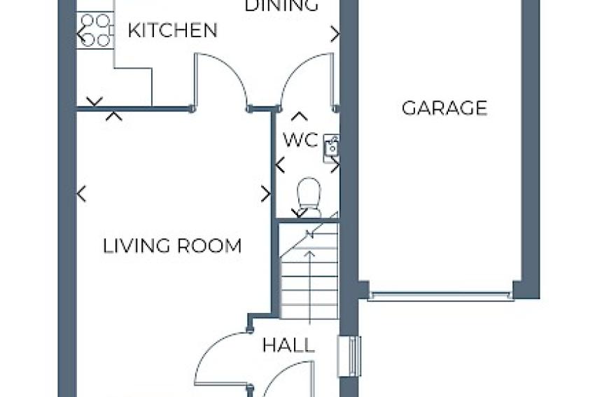
2 & 3 bedroom houses
From £57,229 for a 30% share
(From £190,763 Full Market Value)
Spennymoor, County Durham, DL16 7AS

A new development in the sought after area of Middlestone Moor, Spennymoor, a former mining town standing above the Wear Valley about seven miles from Durham. Middlestone Meadows is well served by local amenities and ideally located for commuting to Durham, Bishop Auckland and further afield.
EPC rating:
EPC-B
PEA- B
Images are for illustrative purposes only. Please speak to Sales Adviser for full details
Example Shared ownership share price options
The following table shows examples of the share price range of this development at various share points
| Share | Price from |
|---|---|
| 30% share | £57,229 |
| 35% share | £66,767 |
| 40% share | £76,305 |
| 45% share | £85,844 |
| 50% share | £95,382 |
| 55% share | £104,920 |
| 60% share | £114,458 |
| 65% share | £123,996 |
| 70% share | £133,534 |
| 75% share | £143,073 |
Are we missing any purchase information? Contact the developer
Please note: Computer generated images are for illustrative purposes only. Images may include optional upgrades at additional cost. Its purpose is to give a feel for the development, not an accurate description of each property. External materials, finishes, landscaping and the position of garages (where provided), may vary throughout the development. Properties may also be built handed (mirror image). Please ask for further details.
Calls cost up to 7p (or 7p per minute) plus your phone company's access charge
