Brun Lea Heights in Burnley
by Home Reach
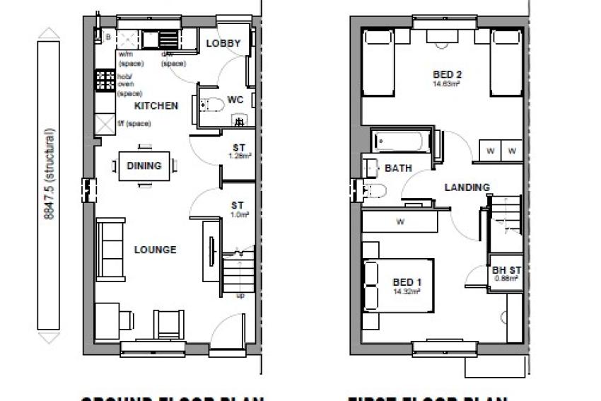
Last 2 bedroom house
£102,500 for a 50% share
(£205,000 Full Market Value)
Burnley, Lancashire, BB11 5HH

Final opportunity to secure a home here — one plot left
This development is made up of 2-bedroom homes beautifully positioned on the outskirts of Burnley. A short drive from the M65 & 5 minutes from the Rossendale Valley. There’s plenty of green open space with Burnley Golf Club close by and Towneley Park just a short drive away with historic landscapes, formal gardens & woodland walks.
Images are for illustrative purposes only. Please speak to Sales Adviser for full details.
EPC/PEA- B
Example Shared ownership share price options
The following table shows examples of the share price range of this development at various share points
| Share | Price from |
|---|---|
| 50% share | £102,500 |
| 55% share | £112,750 |
| 60% share | £123,000 |
| 65% share | £133,250 |
| 70% share | £143,500 |
| 75% share | £153,750 |
Are we missing any purchase information? Contact the developer
Please note: Computer generated images are for illustrative purposes only. Images may include optional upgrades at additional cost. Its purpose is to give a feel for the development, not an accurate description of each property. External materials, finishes, landscaping and the position of garages (where provided), may vary throughout the development. Properties may also be built handed (mirror image). Please ask for further details.
Calls cost up to 7p (or 7p per minute) plus your phone company's access charge
