Hawthorn Rise in Wakefield
by Orion Homes
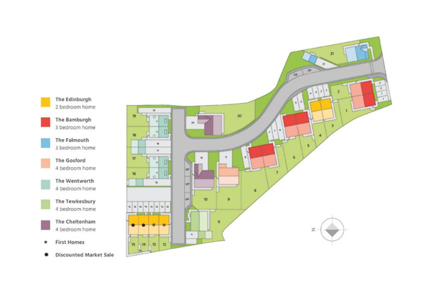
SEMI-RURAL DEVELOPMENT OF TWENTY ONE 2, 3 & 4 BEDROOM HOUSES. A MIX OF SEMI-DETACHED AND DETACHED HOMES.
Opening Hours: Thursday – Monday, 11:00 – 17:00
PRICES FROM £269,995
Grange Moor is a welcoming semi-rural village positioned between Wakefield and Huddersfield. Known for its friendly local community, new residents are quickly made to feel part of village life. The area offers beautiful open landscapes, local shops, friendly pubs, and scenic walking routes through Yorkshire’s countryside.
Residents benefit from local services such as the mobile post office, which visits the village every Wednesday between 11 am and 12 pm, and Middlestown Medical Centre, providing convenient healthcare for families and individuals
Are we missing any purchase information? Contact the developer
Please note: Computer generated images are for illustrative purposes only. Images may include optional upgrades at additional cost. Its purpose is to give a feel for the development, not an accurate description of each property. External materials, finishes, landscaping and the position of garages (where provided), may vary throughout the development. Properties may also be built handed (mirror image). Please ask for further details.
Calls cost up to 7p (or 7p per minute) plus your phone company's access charge

